Panoramica

Codice Annuncio: 4120
  • 4120
  • Codice Annuncio
  • Villa
  • Tipologia
  • 3
  • Vani
  • 1
  • Bagno
  • 106
  • 2015
  • Anno di Costruzione

Dettagli

  • Codice Annuncio: 4120
  • Prezzo: 69.000€
  • Dimensioni Immobile: 106 m²
  • Vani: 3
  • Bagno: 1
  • Anno di Costruzione: 2015
  • Tipologia: Villa
  • Motivazione: In Vendita
  • Destinazione d' uso: Abitazione Residenziale, Studenti/Investimento Università
  • Posto Auto: Privato
  • Servizi Vicini: Università
  • Consegna: Pronta Consegna
  • Condizione: IN COSTRUZIONE
  • Classe Energetica: Esente

Caratteristiche

Descrizione

Rende, contrada Longeni, proponiamo in vendita villetta indipendente allo stato rustico. 

La villetta dislocata su due livelli con un piamo seminterrato ed un piano rialzato con una piccola corte che rende l’abitazione totalmente indipendente e ben pensata con tutti i confort , ma il progetto può essere oggetto di modifica e personalizzazioni.

Piano RialzatoAccogliente zona giorno con cucina e soggiorno luminosi, due camere da letto, un bagno e balcone.

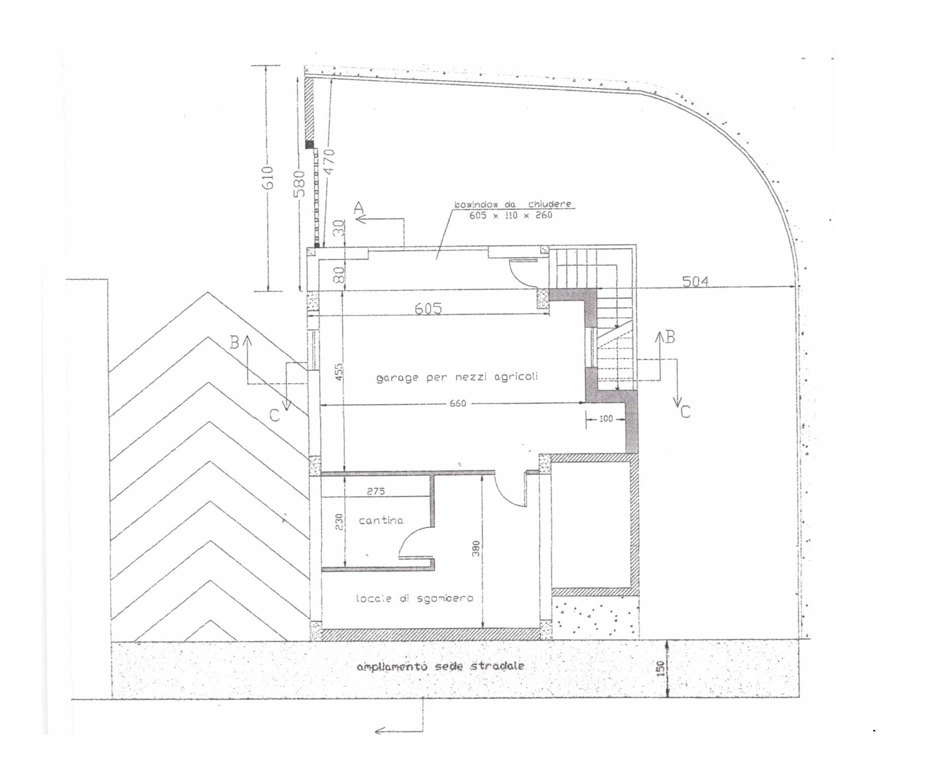
  • Piano Seminterrato: Garage , cantina, locale di sgombero e corte privata.
  • Questa soluzione è perfetta per chi desidera personalizzare la propria casa secondo i propri gusti e necessità, in una posizione strategica e tranquilla. Il progetto è visionabile in ufficio su appuntamento. 

Planimetrie

image

Descrizione:

PIANO SEMINTERRATO

1planimetria53 mq

image

Descrizione:

PIANO RIALZATO

1planimetria53 mq

Calcolatore mutuo

Mensile
  • Acconto
  • Ammontare del prestito
  • Pagamento mensile del mutuo
%
%
Vuoi una consulenza sul tuo mutuo? Clicca qui per andare al servizio

Classe Energetica

  • Classe Energetica: Esente
  • I.P.E. :
  • A4
  • A3
  • A2
  • A1
  • B
  • C
  • D
  • E
  • F
  • G

Immobili simili

Compare listings

Compare
Studio Roges Immobiliare
  • Studio Roges Immobiliare