Rende, Località Sant’Agostino – Eleganza e Comfort in un Contesto Esclusivo
In un prestigioso palazzo signorile, proponiamo in vendita un raffinato appartamento con garage situato al quarto piano di un moderno edificio, pensato per offrire comfort, sicurezza e privacy in un ambiente tranquillo e curato.
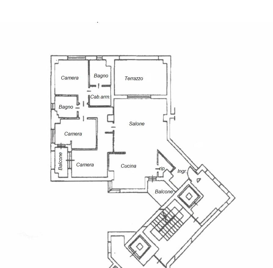
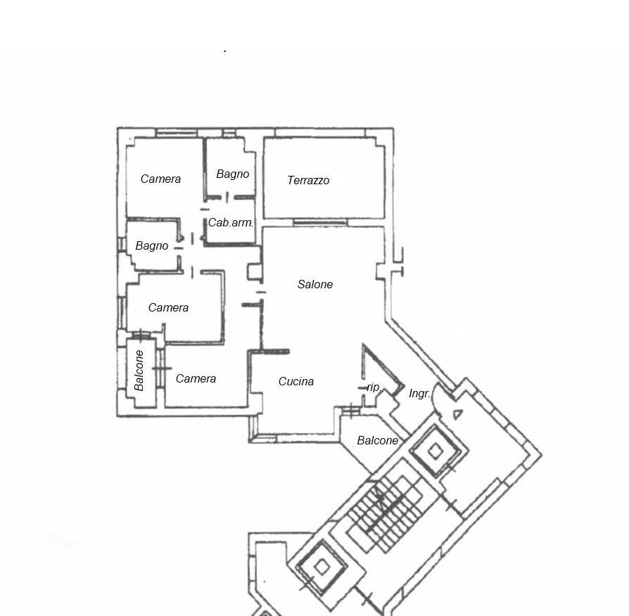
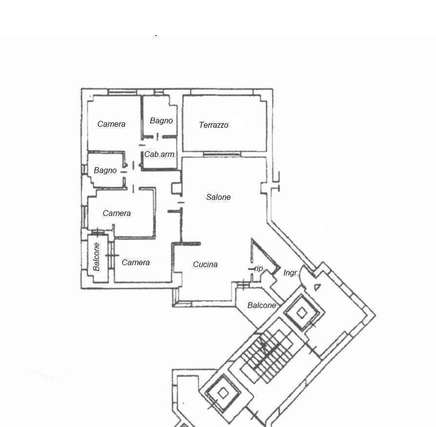
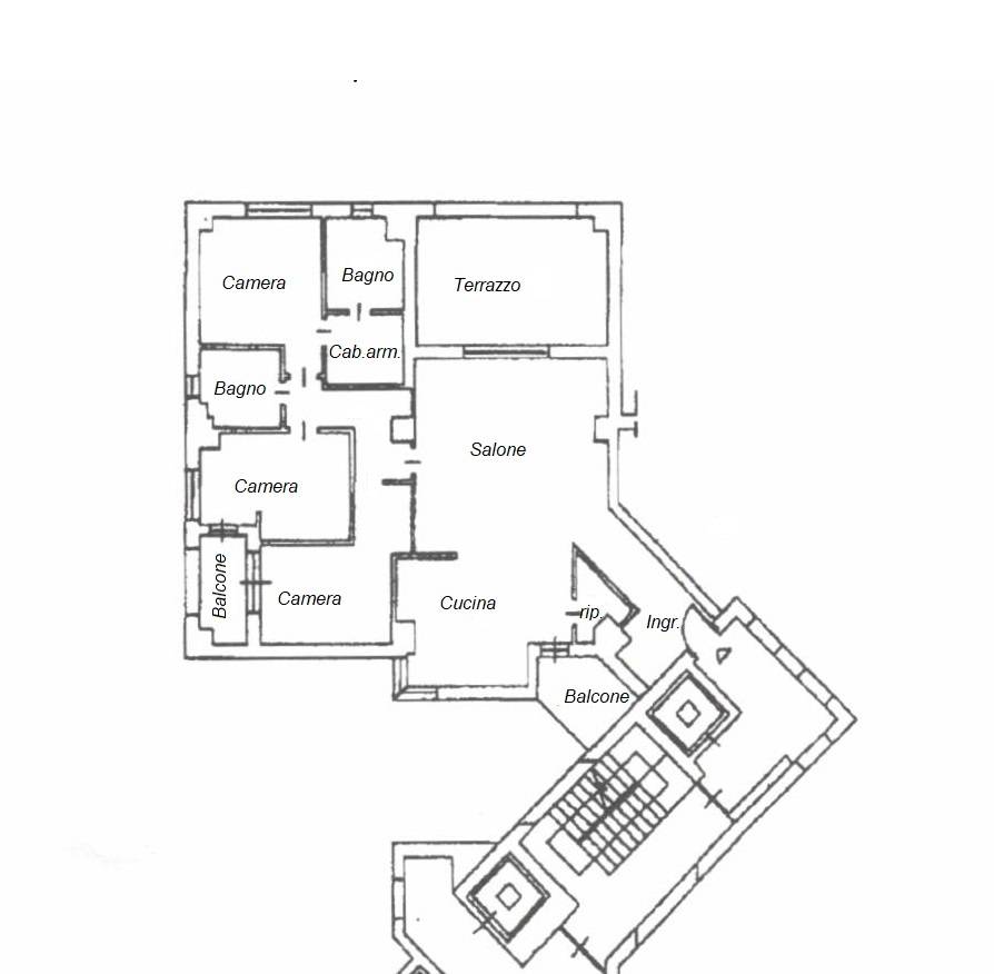
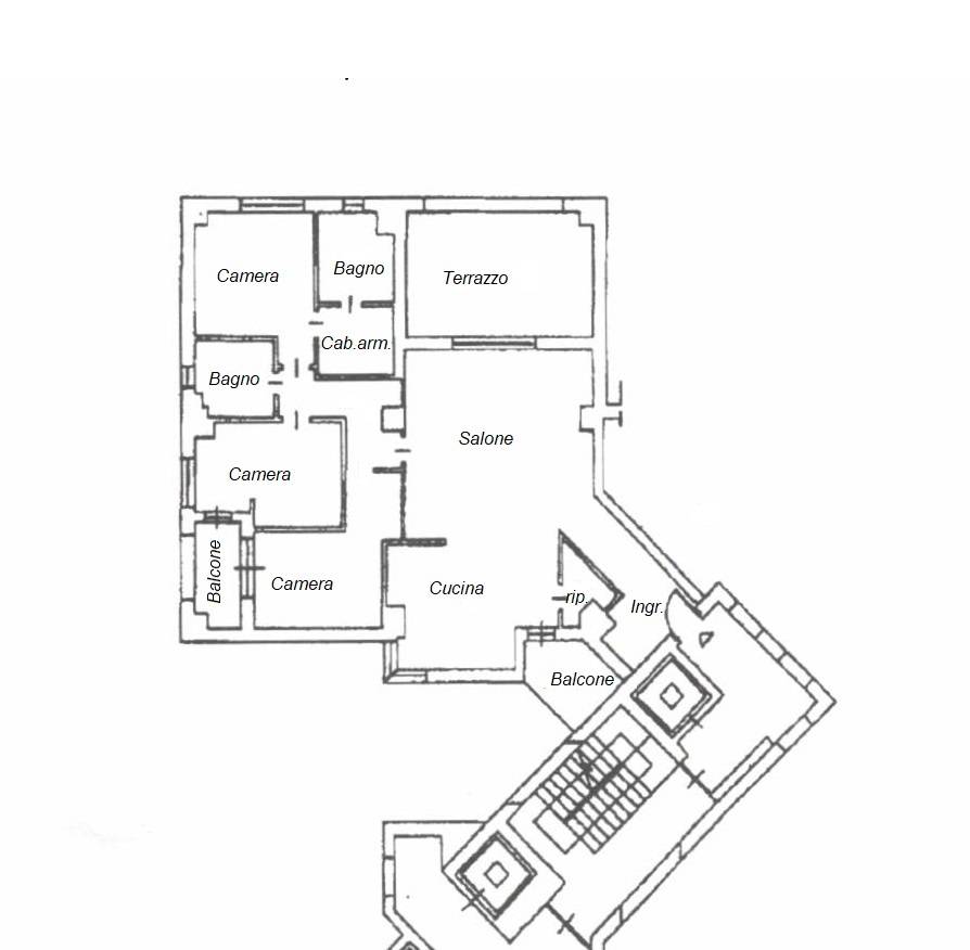
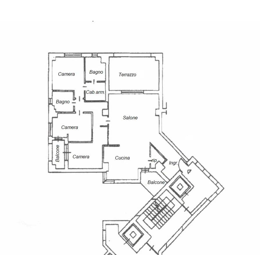
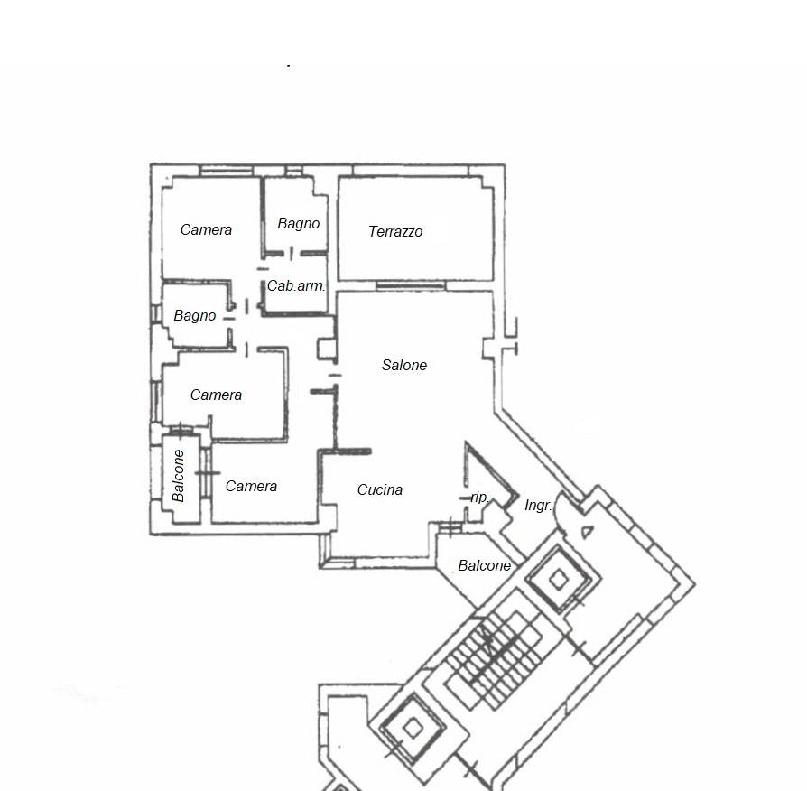
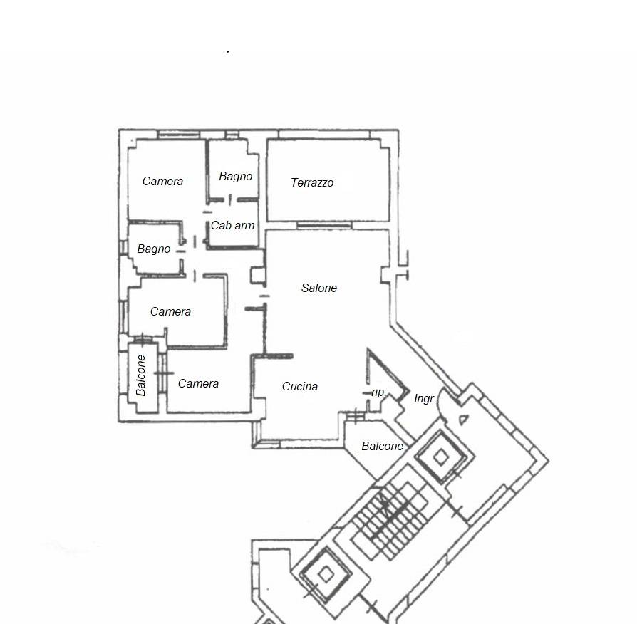
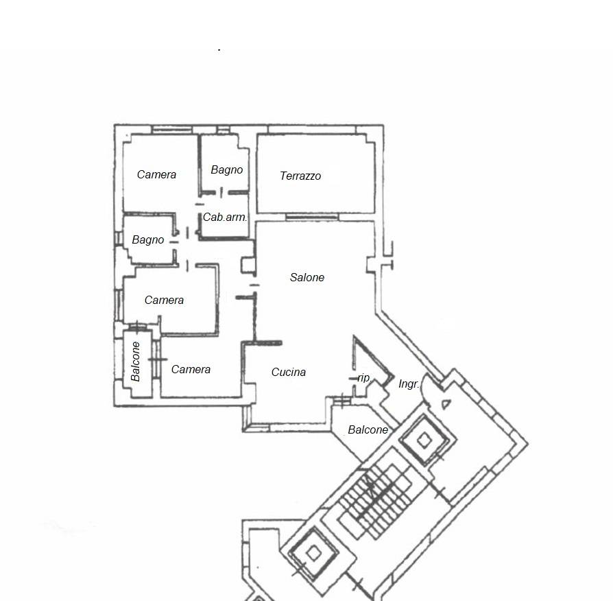
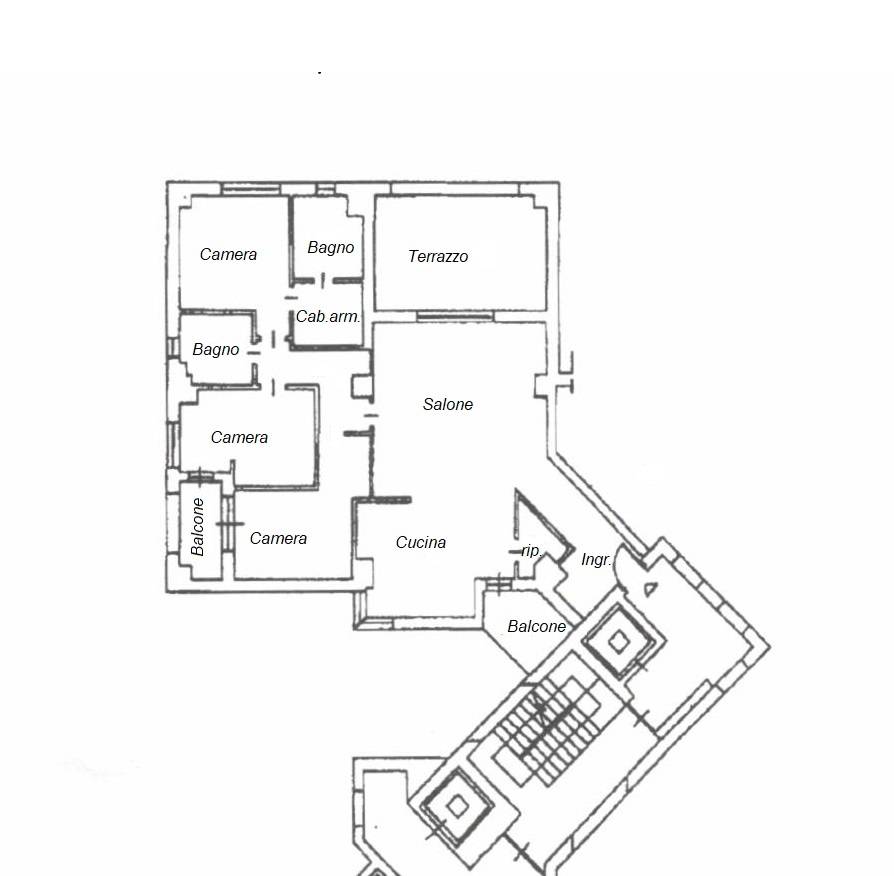
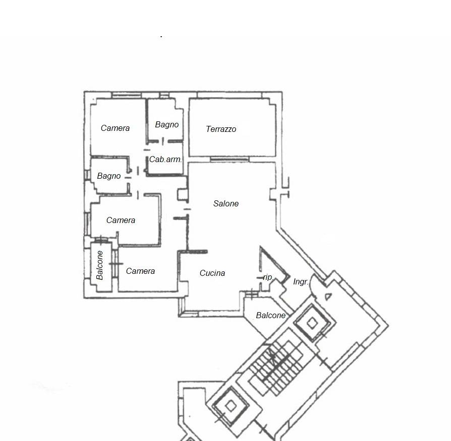
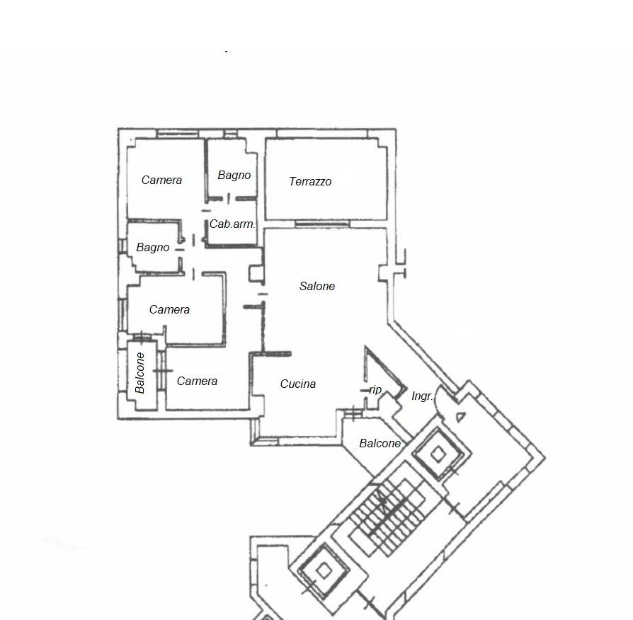
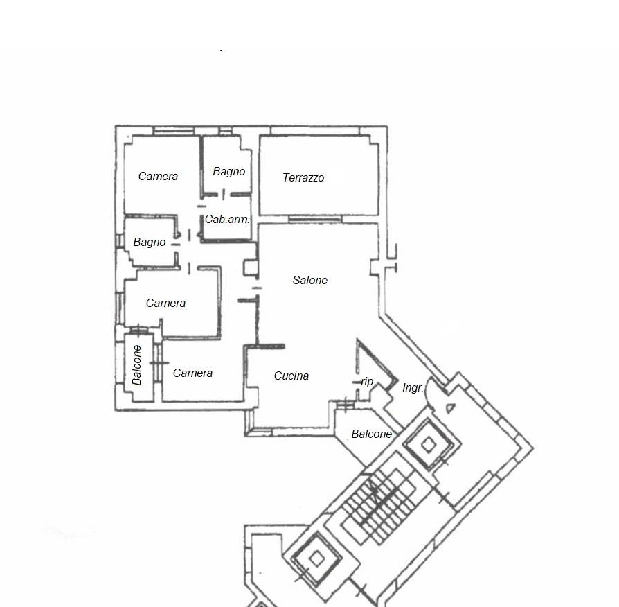
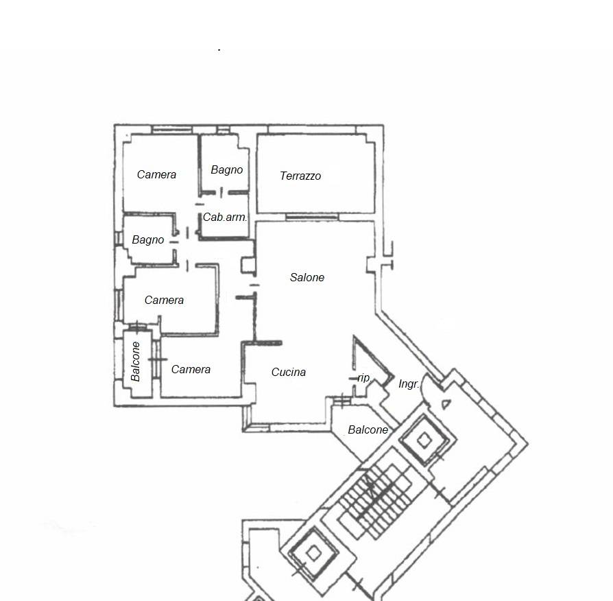
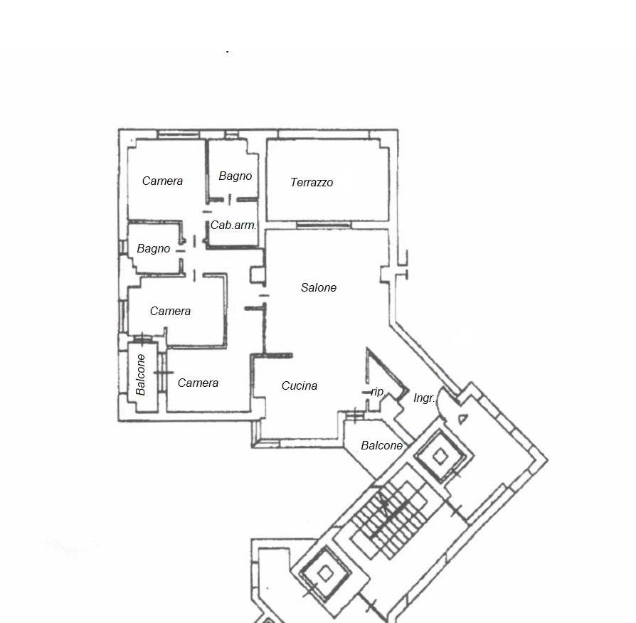
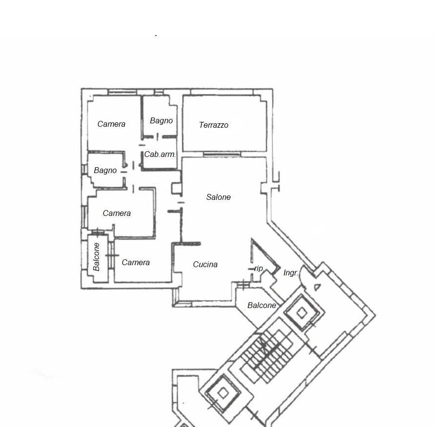
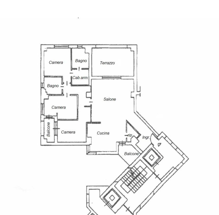
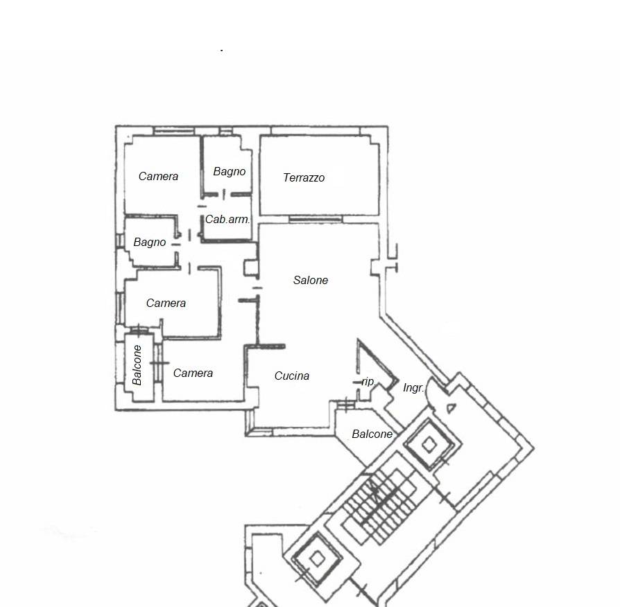
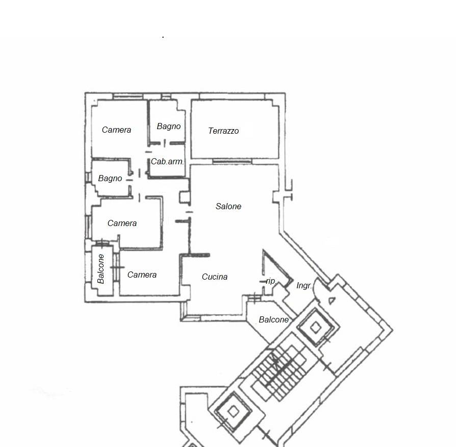
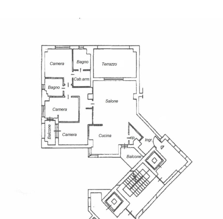
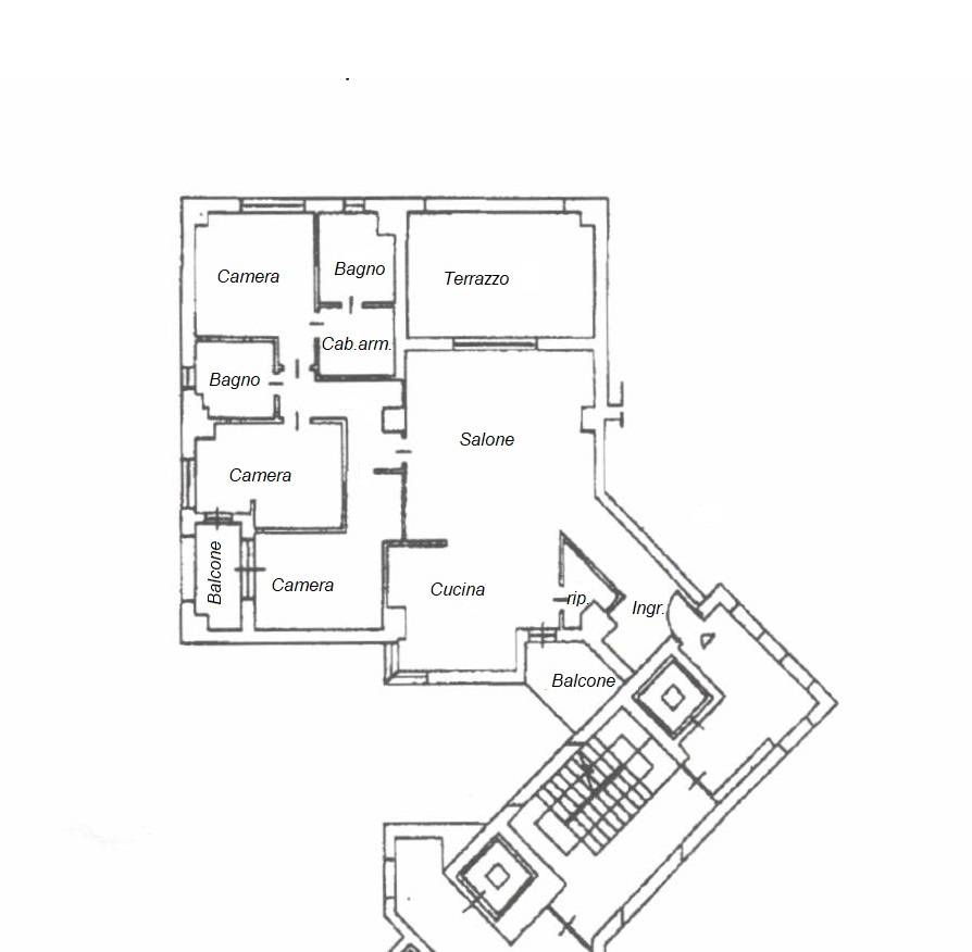
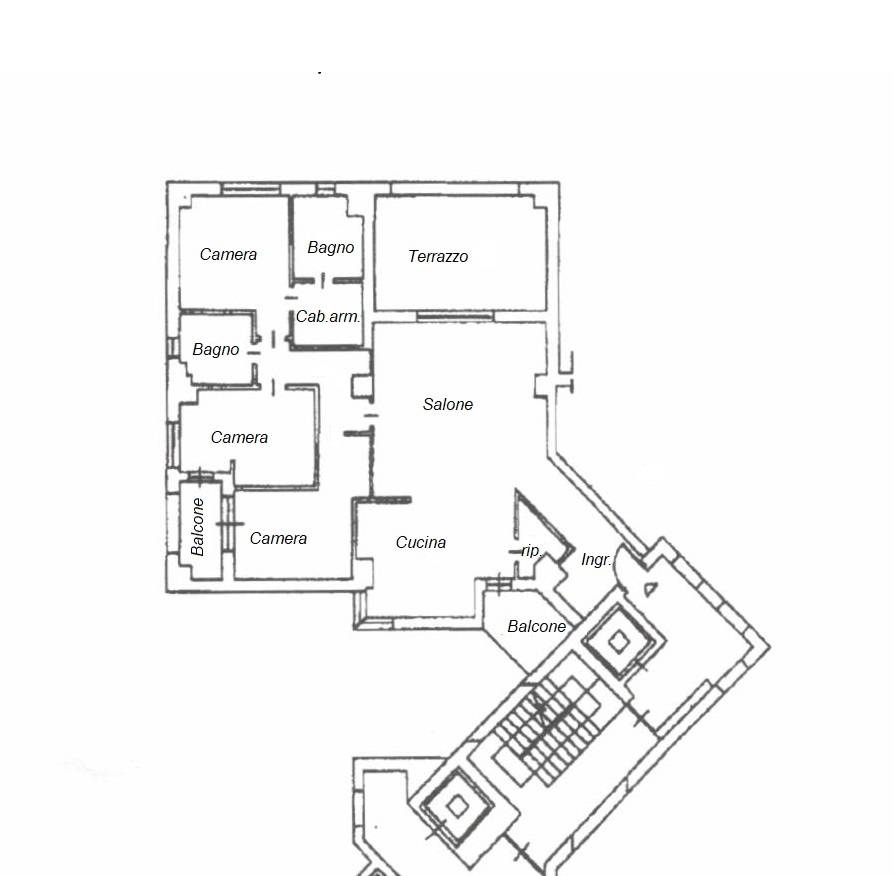
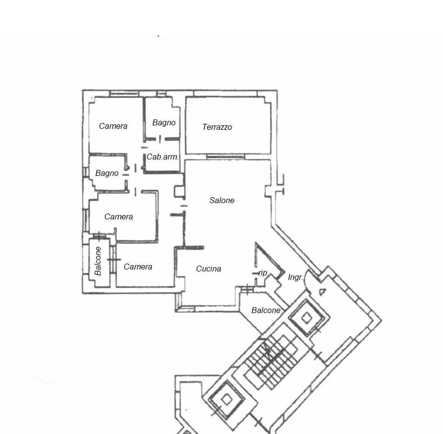
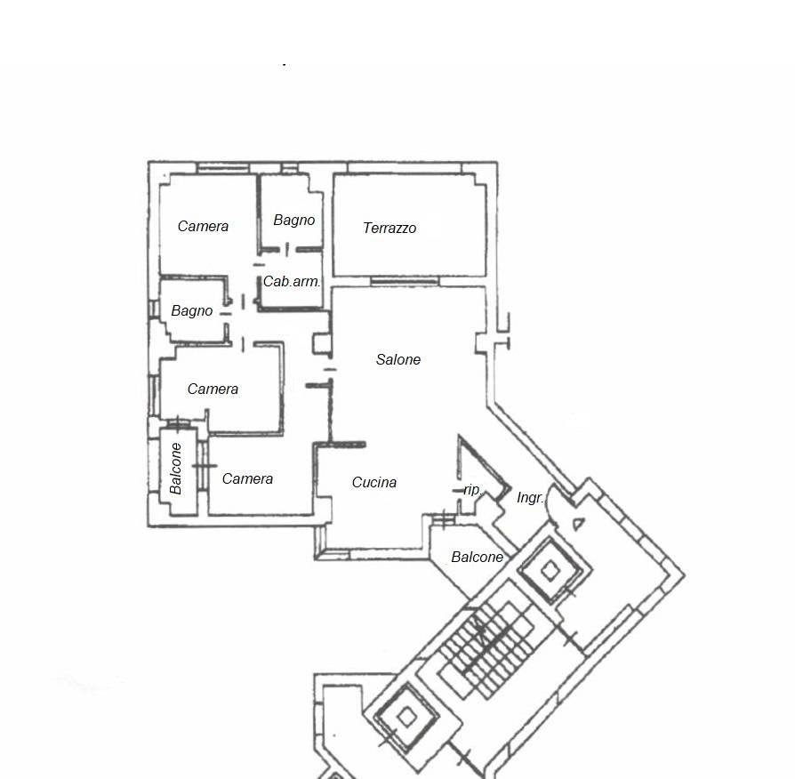
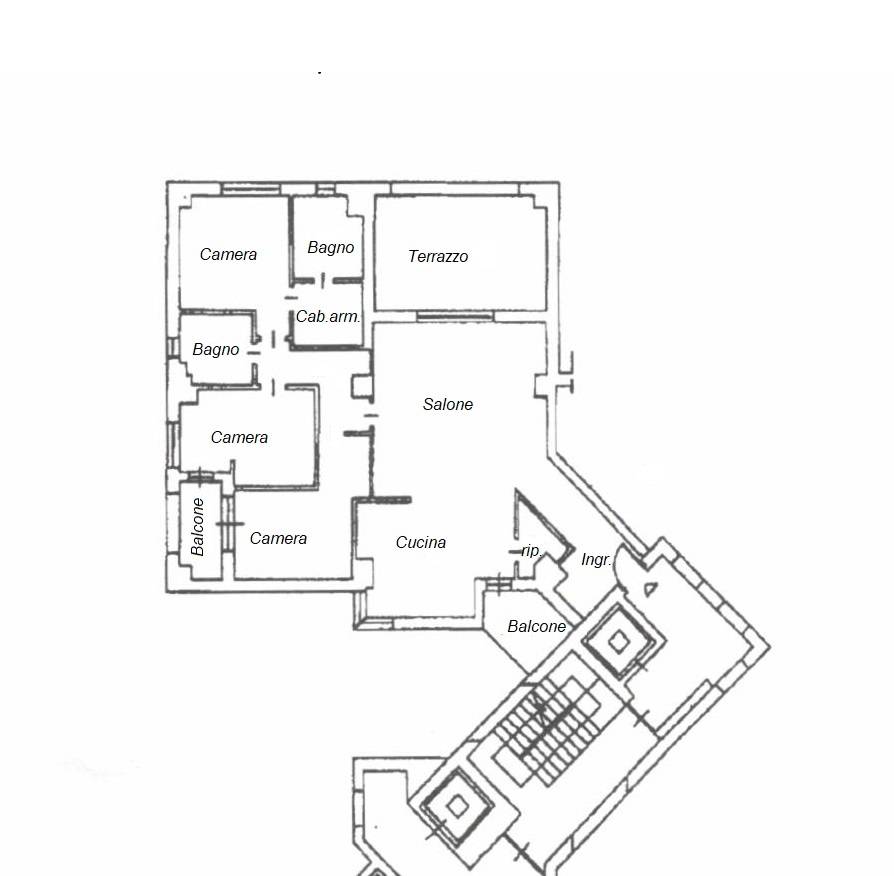
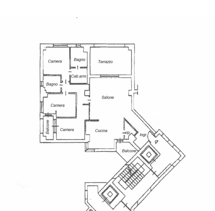
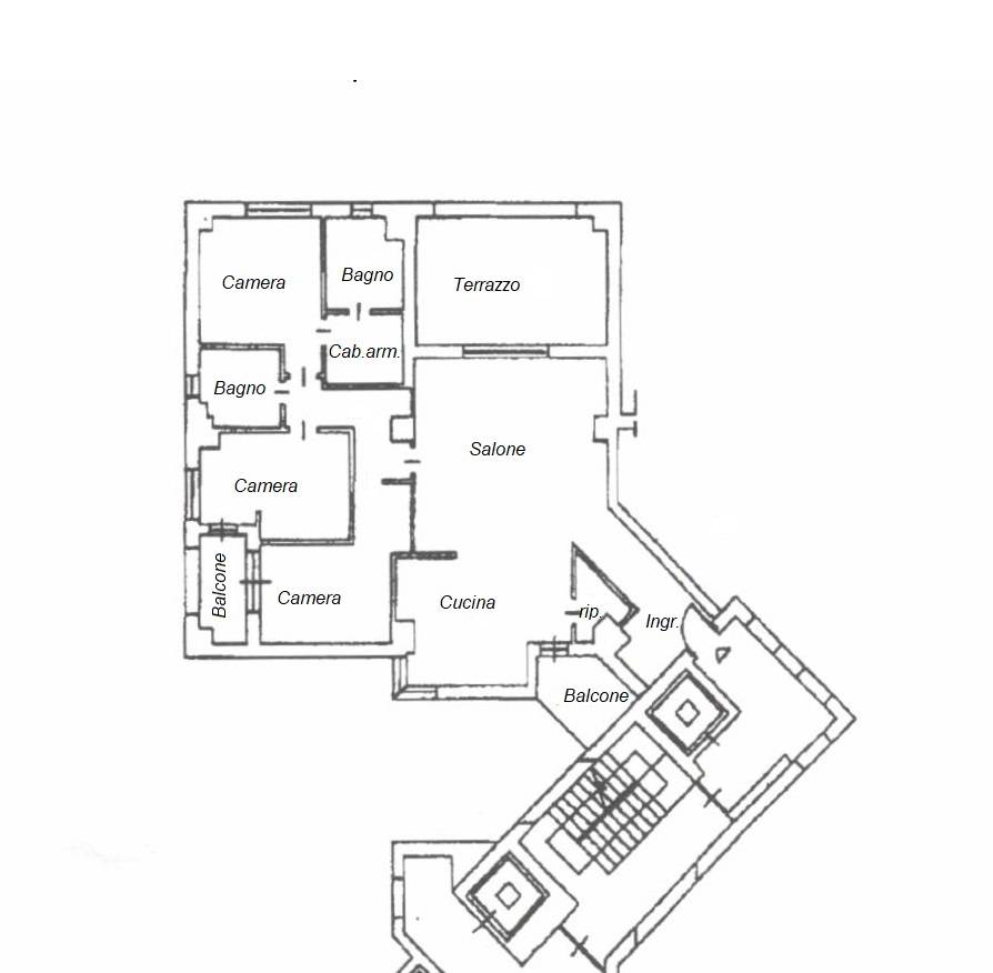
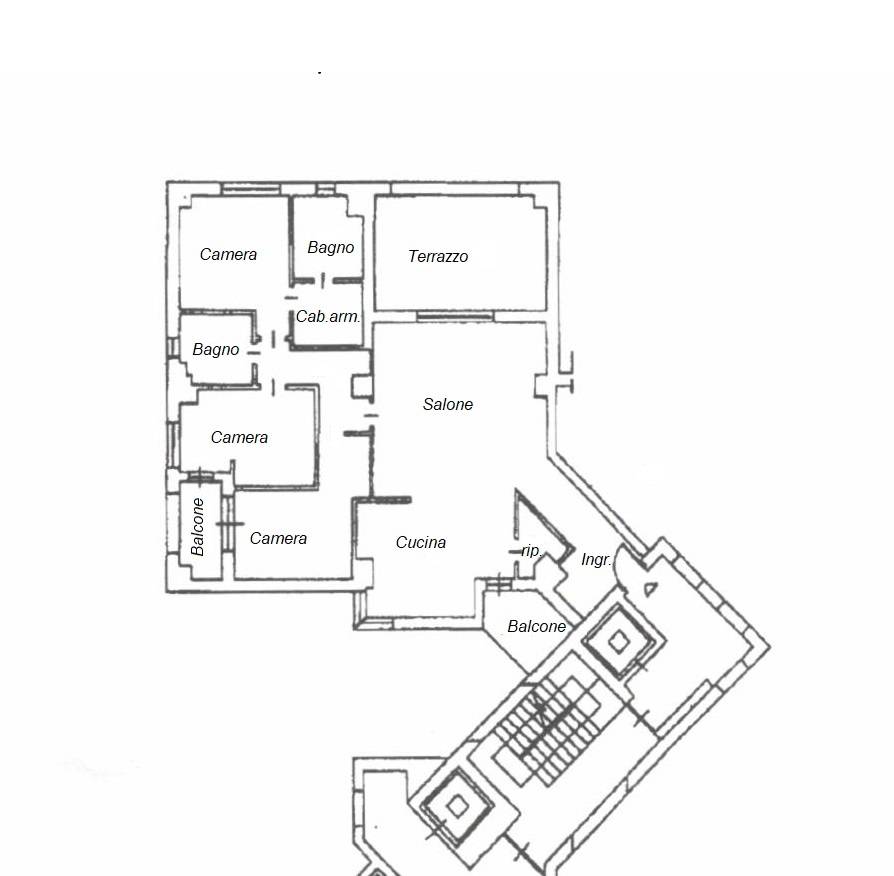
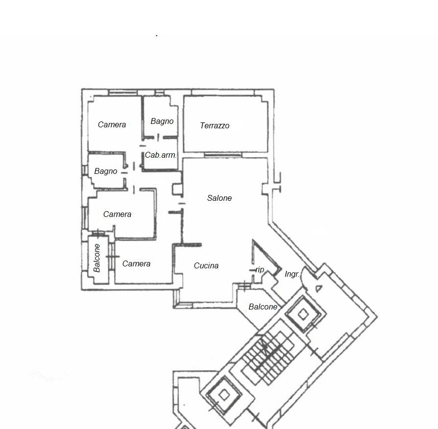
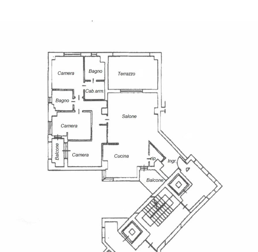
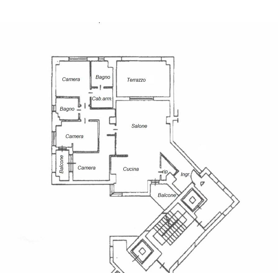
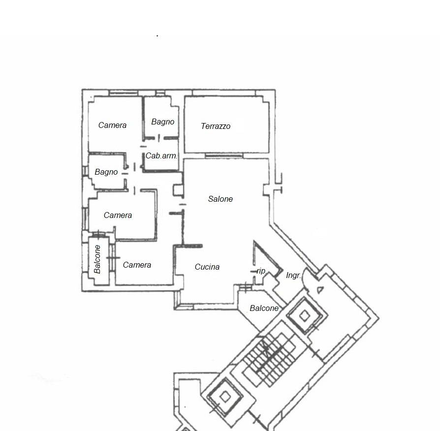
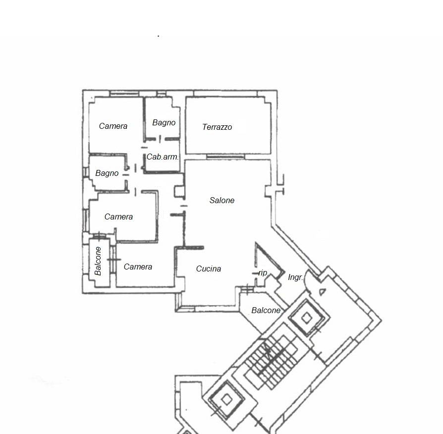
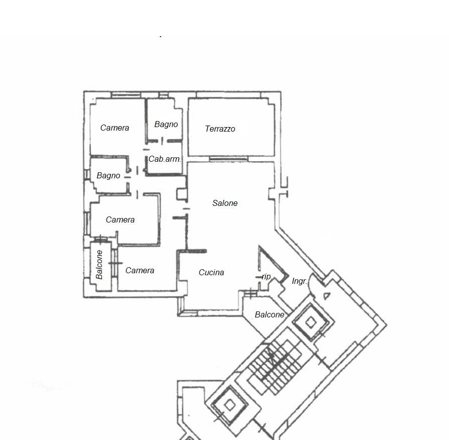
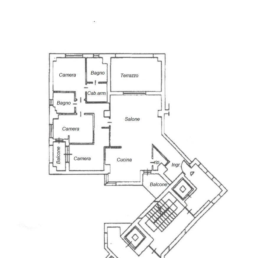
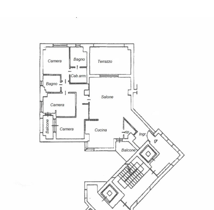
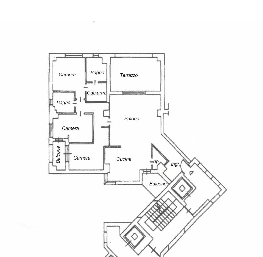
L’appartamento si caratterizza per una disposizione funzionale e ambienti luminosi:
Un garage doppio aggiunge praticità e valore alla proprietà.
Comfort e Sicurezza al Primo Posto
Il complesso è immerso in un’area esclusiva, delimitata da siepi e piante ornamentali che assicurano riservatezza e tranquillità. La sicurezza è garantita da un sistema di videosorveglianza, affiancato dal servizio di portineria.
Architettura Moderna e Atmosfera Unica
L’edificio si distingue per il suo design moderno ed elegante. L’assenza di locali commerciali preserva un’atmosfera silenziosa e rilassante, arricchita da spazi verdi attrezzati, ampie aree di parcheggio e una suggestiva fontana che aggiunge un tocco di fascino.
Gli ingressi carrabili automatizzati e i cancelletti pedonali garantiscono un accesso comodo e sicuro, mentre due ascensori e una scala in marmo facilitano la mobilità all’interno dello stabile.
Tecnologie Avanzate per il Massimo Comfort
La proprietà è dotata di un sistema di riscaldamento e raffrescamento a pavimento zonale, che permette di regolare la temperatura in ogni ambiente, assicurando un benessere abitativo senza compromessi.
Un Rifugio di Stile e Tranquillità
Questa soluzione abitativa rappresenta una scelta ideale per chi cerca una residenza che unisca design, funzionalità e un contesto esclusivo, offrendo un ambiente sereno, curato nei minimi dettagli.