In Primo Piano In Vendita Novità

Magazzino in vendita

Cosenza (CS)
  • 200.000€

Panoramica

Codice Annuncio: 9225
  • 9225
  • Codice Annuncio
  • Magazzino - Garage - Capannone
  • Tipologia
  • 4
  • Vani
  • 3
  • Bagni
  • 117

Dettagli

  • Codice Annuncio: 9225
  • Prezzo: 200.000€
  • Dimensioni Immobile: 117 m²
  • Vani: 4
  • Bagni: 3
  • Tipologia: Magazzino - Garage - Capannone
  • Motivazione: In Vendita
  • Destinazione d' uso: Commerciale
  • Piano: Piano terra
  • Servizi Vicini: Chiesa, negozi vari
  • Servizi Sanitari: Ospedale, Guardia Medica, Farmacia
  • Esposizione: Sud/est
  • Consegna: Pronta Consegna
  • Condizione: Usato
  • Classe Energetica: G

Caratteristiche

Descrizione

Cosenza centro (zona Piazza Santa Teresa) prponiamo in Vendita due locali commerciali confinanti,

In una delle aree più vivaci e frequentate di Cosenza centro, a pochi passi da Piazza Santa Teresa, proponiamo in vendita due magazzini commerciali confinanti, distinti ma adiacenti, situati in posizione angolare con ottima visibilità e forte passaggio pedonale, soprattutto nelle ore serali.
Entrambi i locali si presentano in buono stato manutentivo, e sono composti da ambienti interni funzionali, bagni con antibagni  due vetrine su strada principale e due vetrine laterali .
Ciascun magazzino dispone inoltre di una pedana esterna, ideale per posizionare tavolini o un’area ristoro all’aperto.
La posizione centrale a ridosso della movida cittadina , rende questi immobili perfetti per attività di ristorazione, o altre attività commerciali che necessitano di alta visibilità e passaggio costante.
I magazzini sono acquistabili insieme o separatamente (codici annuncio 9025 e 9125) 
Un’ottima opportunità per chi desidera investire in una zona dal grande potenziale commerciale nel cuore di Cosenza.

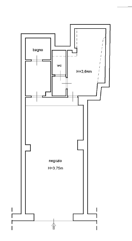
Planimetrie

image

Descrizione:

PLANIMETRIA 9025

1Magazzino64 mq

image

Descrizione:

PLANIMETRIA 9125

1Magazzino53 mq

Calcolatore mutuo

Mensile
  • Acconto
  • Ammontare del prestito
  • Pagamento mensile del mutuo
%
%
Vuoi una consulenza sul tuo mutuo? Clicca qui per andare al servizio

Classe Energetica

  • Classe Energetica: G
  • I.P.E. : 631.6
  • A4
  • A3
  • A2
  • A1
  • B
  • C
  • D
  • E
  • F
  • 631.6 | Classe Energetica: G
    G

Immobili simili

Compare listings

Compare
Studio Roges Immobiliare
  • Studio Roges Immobiliare