In Primo Piano In Vendita

Appartamento in vendita

Rende (CS)
  • 118.000€

Panoramica

Codice Annuncio: 9625
  • 9625
  • Codice Annuncio
  • Appartamento
  • Tipologia
  • 3
  • Vani
  • 1
  • Bagno
  • 114.28
  • 1970
  • Anno di Costruzione

Dettagli

  • Codice Annuncio: 9625
  • Prezzo: 118.000€
  • Dimensioni Immobile: 114.28 m²
  • Vani: 3
  • Bagno: 1
  • Anno di Costruzione: 1970
  • Tipologia: Appartamento
  • Motivazione: In Vendita
  • Destinazione d' uso: Abitazione Residenziale, Studenti/Investimento Università
  • Piano: 3
  • Riscaldamento: Autonomo
  • Posto Auto: Condominiale
  • Servizi Vicini: negozi vari, centro commerciale, Scuole Elementari, negozio alimentari, Sport/Palestre, Scuole Superiori, Uffici Postali, Banca, Asilo, supermercati
  • Servizi Sanitari: Farmacia
  • Esposizione: Nord/est, Ovest
  • Consegna: 6/8 Mesi
  • Condizione: Usato
  • Classe Energetica: E

Caratteristiche

Descrizione

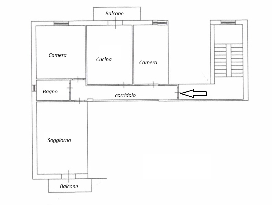
Rende, località Roges, proponiamo in vendita ampio appartamento posto al terzo piano di una palazzina di quattro piani senza ascensore.

L’appartamento è composto da ingresso, corridoio, cucina abitabile con balcone, soggiorno con balcone, due camere da letto e bagno.
Si presenta in buono stato ed è attualmente locato, con contratto in scadenza il 30/06/2026, caratteristica che lo rende ideale come investimento a reddito.
Ottima soluzione per chi cerca ambienti ampi in una zona centrale e ben servita.

Planimetrie

image

Descrizione:

PLANIMETRIA 3°PIANO

1Corridoio11.56 mq
2Camera13.79 mq
3Cucina16.41 mq
4balcone3.51 mq
5Soggiorno25.22 mq
6balcone3.5 mq
7Bagno6.21 mq
8Camera Matrimoniale17.72 mq

Video

Calcolatore mutuo

Mensile
  • Acconto
  • Ammontare del prestito
  • Pagamento mensile del mutuo
%
%
Vuoi una consulenza sul tuo mutuo? Clicca qui per andare al servizio

Classe Energetica

  • Classe Energetica: E
  • I.P.E. : 188,78
  • A4
  • A3
  • A2
  • A1
  • B
  • C
  • D
  • 188,78 | Classe Energetica: E
    E
  • F
  • G

Immobili simili

Compare listings

Compare
Studio Roges Immobiliare
  • Studio Roges Immobiliare